Deze website maakt gebruik van cookies

Deze website gebruikt cookies en verzamelt daarmee informatie over het gebruik van de website onder andere om deze te analyseren en te verbeteren en voor social media. Wil je meer weten over deze cookies, lees dan onze privacy disclaimer en de uitleg over cookies
Door hiernaast op "Akkoord" te drukken, geef je aan akkoord te zijn met het gebruik van cookies en het verzamelen van informatie aan de hand daarvan door ons en door derden. Wil je niet alle soorten cookies toestaan, klik dan op "Cookie instellingen aanpassen".

foto
foto
foto
foto
foto
foto
foto
foto
foto
foto
foto
foto
foto
foto
foto
foto
foto
foto
foto
foto
foto
foto
foto
foto
foto
foto
foto
foto
foto
foto
foto
foto
foto
foto
foto
foto
foto
foto
foto
foto
foto
foto
foto
foto
foto
foto

van Poelgeestlaan 2 2396 BC Koudekerk aan den Rijn

Omschrijving

DEZE HOEKWONING MET GARAGE EEN PARELTJE, OMDAT

- op een hoek gelegen op een groot perceel van 267 m2;
- vrijwel de hele dag zon in de achtertuin (westelijke ligging);
- begane grond is uitgebouwd en heeft een open woonkamer/keuken;
- verhoogde 2e etage met 2 volwaardige slaapkamers;
- garage verhoogd, met lichtkoepels, en toegankelijk via een 2e hal;
- energielabel A++, geldig tot 17-10-2035

Kortom: een woning die met zorg is aangepast, meegaat met zijn tijd en klaarstaat voor nieuwe bewoners die ruimte, comfort en doordachte keuzes waarderen. Een huis waar je moeiteloos je thuis van maakt.
Op zoek naar een pareltje van een huis. Gevonden.

Omgeving:
Het dorp Koudekerk aan den Rijn is een leuk dorp in het Groene Hart, omringd door prachtige polders en waterwegen. Het biedt een rustige levensstijl, perfect voor gezinnen en natuurliefhebbers. De nabijheid van grotere steden maakt het gemakkelijk om te genieten van de voordelen van het stadsleven, terwijl je toch de rust van het platteland hebt.

Een sterk punt de bereikbaarheid. Met goede verbindingen naar omliggende steden, zoals Amsterdam, Schiphol Airport, Leiden en Alphen aan den Rijn is het zeker ideaal voor forenzen. Daarnaast zijn er diverse voorzieningen, zoals winkels, sportaccommodaties en scholen op dorpsniveau aanwezig. Al met al een prima leefomgeving.

HISTORIE VAN DE WONING
De woning is gebouwd in 1968. De huidige eigenaar heeft het huis verfraaid, vergroot en verduurzaamd. Zo is in 2012 begane grond uitgebouwd, in 2022 een nokverhoging geplaatst en het huis verduurzaamd door middel van isolatie, hybride warmtepomp, lage temperatuur radiatoren en zonnepanelen. In 2024 is de badkamer geheel gerenoveerd en daarmee aangepast naar de huidige tijd. Er is een waterontharder geïnstalleerd waardoor alles kalkvrij blijft en dus minder schoonmaakwerk oplevert. Als gevolg van deze verbouwingen en verduurzaming heeft het huis een energielabel A++ gekregen. De voordelen hiervan zijn dat het maandelijks scheelt in de portemonnee, er is een mogelijkheid voor een hogere lening en een rentekorting behoort tot de mogelijkheden.

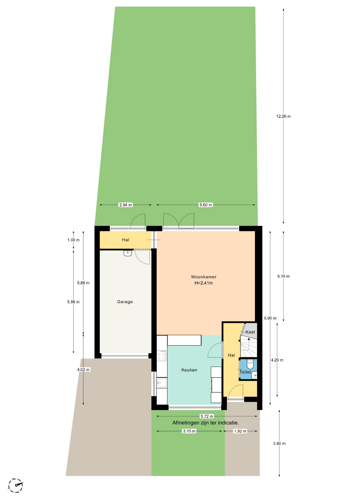
INDELING VAN DE WONING
De begane grond is uitgebouwd waardoor er een heerlijk ruim leefoppervlak is ontstaan. Aan de voorzijde van de woning bevinden zich de entree/hal met het moderne toilet. Vanuit hier kom je in de open keuken/woonkamer. De indeling is slim aangepast: de keuken is verplaatst naar de voorzijde van de woning, waar je nu kookt met uitzicht op zowel de straat als achtertuin en volop in het daglicht. De woonkamer voelt open en grenst aan de heerlijk vrij gelegen achtertuin. Via de openslaande deuren achter kun je al snel genieten van de lentezon. Vanuit de woonkamer is via een 2e hal de garage toegankelijk. Tot slot maakt de fraaie vloerafwerking met vloerverwarming het geheel strak en eigentijds.

Op de 1e etage wacht een echte blikvanger: een prachtige, modern afgewerkte badkamer waar comfort en stijl hand in hand gaan. Compleet ingericht met een inloopdouche, 2e toilet, elektrische design radiator, wastafelmeubel met dubbele wastafel en daarboven een verwarmde spiegel en geen koude voeten door de aanwezige elektrische vloerverwarming. Daarnaast zijn er drie volwaardige slaapkamers, ideaal voor een gezin, thuiswerken of logees.

De 2e etage verrast opnieuw. Hier vind je een ruime en lichte overloop voorzien van een lichtkoepel (die ook toegang verschaft tot het dak), wastafelmeubel, wasmachine- en wasdroger aansluiting. Hiernaast bevindt zich hier ook een groot deel van de technische installatie (WTW- ventilatiesysteem en een hybride ketel met buffervat), die helemaal klaar is voor de toekomst. Daarnaast zijn er nog twee volwaardige slaapkamers, beide voorzien van een dakkapel, waardoor ook hier ruimte en licht de hoofdrol spelen.

Buiten is er veel ruimte rondom de woning. Zo is er aan de voorzijde een oprit en dus ook een eigen parkeergelegenheid die toegang biedt naar de garage naast de woning. Deze garage is uitermate geschikt als klusruimte, voorzien van krachtstroom, of voor stalling van een auto, fietsen en/of motorfiets. Aan de voorzijde van de garage bevindt zich het laadpunt voor een elektrische auto, die gekoppeld is aan zonnepanelen voor efficiënt gebruik van de opgewekte energie.

Aan de achterzijde van de woning bevindt zich een ruime achtertuin, ook toegankelijk via een achterom. In de achtertuin bevindt zich een heerlijke overkapping, waardoor je al snel lekker buiten kunt zitten om onder het genot van een kopje koffie heerlijk te genieten van de fijne achtertuin. Daarnaast staat er een ingegraven trampoline en een prachtig speelhuis met schommels en glijbaan in de achtertuin zodat ook eventuele kinderen zich heerlijk kunnen vermaken! Tot slot biedt het brede terras (over de hele breedte van de woning + garage!) een mooie plek voor een grote buitentafel om heerlijk aan te zitten en te tafelen.

Geïnteresseerd? Bel dan snel voor een bezichtiging


Bijzonderheden:
- kosten gas, water en elektra € 136,= per maand;
- gemeentelijke heffingen jaar 2026 € 1.200,= (meergezinshuishouden);
- afwerking begane grond een fraaie houten vloer;
- 1e en 2e verdieping vloerafwerking pvc;
- wand afwerking glad stucwerk;
- moderne meterkast;
- 13 zonnepanelen;
- hybride verwarming met CV ketel en warmtepomp;
- duurzaam, op de toekomst voorbereid en overal aan gedacht;
- onderhoudsarm mede door kunststof kozijnen.


 Bezichtiging aanvragen

Uniek aan deze woning

Kenmerken

Kenmerken

Vraagprijs: € 589.000,- k.k.
Aanvaarding: per datum
Bouwvorm: Bestaande bouw
Bouwjaar: 1968
Ligging: in woonwijk, open ligging
Woonoppervlakte: 143 m²
Perceeloppervlakte: 267 m²
Inhoud: 505 m³
Bijzonderheden: gedeeltelijk gestoffeerd
Type woning: hoekwoning, eengezinswoning
Kamers: 6
Slaapkamers: 5
Badkamers: 1
Energielabel: A++
Verwarming: c.v.-ketel, elektrische verwarming, vloerverwarming gedeeltelijk, warmte terugwininstallatie, warmtepomp
Tuin: achtertuin, voortuin, zijtuin
Ligging Tuin: west
Garage: aangebouwd steen

Video

Video TOP

Vraag bezichtiging aan

Vraag bezichtiging aan TOP

Locatie

Locatie TOP

U vertrekt vanaf

Toon route